The Parque das Nações neighbourhood in Lisbon will be the new home of Caixa Geral de Depósitos headquarters. We are excited to take on this challenge and responsibility, creating a unique workspace across two towers, totalling 21 floors, fulfilling the expectation of combining architecture with the bank’s core commitments: proximity, solidity, commitment to people and, above all, a pioneering spirit, based on a promise of sustainability and new ways of working.

We introduced the concept of the “Caixa Forte” (“Fortified Box”) as a metaphor for strength and resilience, honoring the legacy of a historic banking institution while embracing a modern, human-centric approach. The architecture reflects transparency, flexibility, and closeness, its defining traits. The design balances geometric rigor with organic movement, creating adaptable spaces in a refined palette of wood, grey, and deep navy tones. Portuguese identity is embedded throughout, from the use of national materials to the integration of artworks from CGD’s collection, reinforcing its role as a leading patron of Portuguese art.

“More collaborative, healthier, less siloed, more open — a space that conveys robustness and trust, but also modernity.”

Paulo Macedo, Board President of CGD

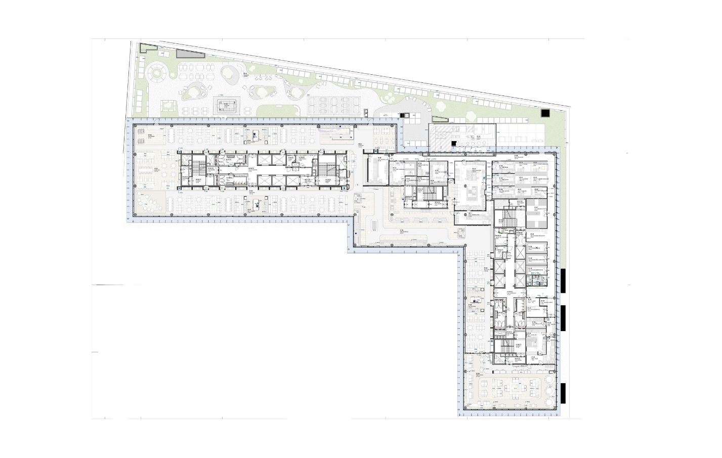
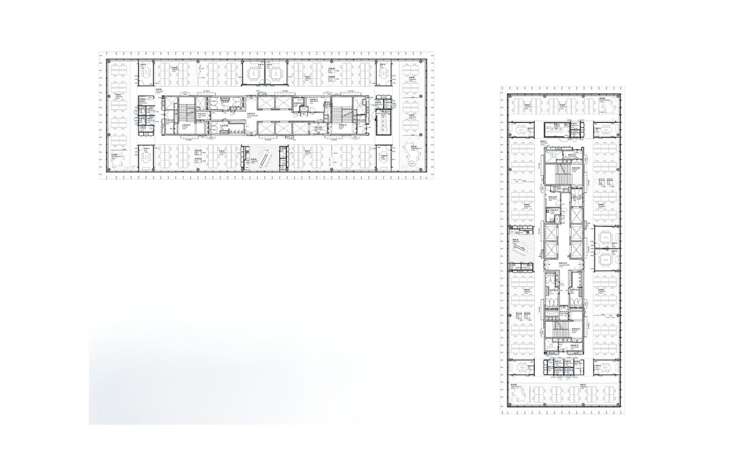
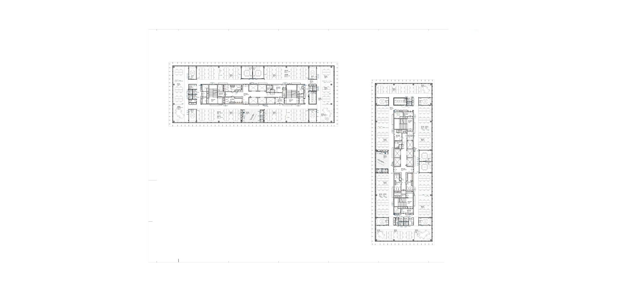
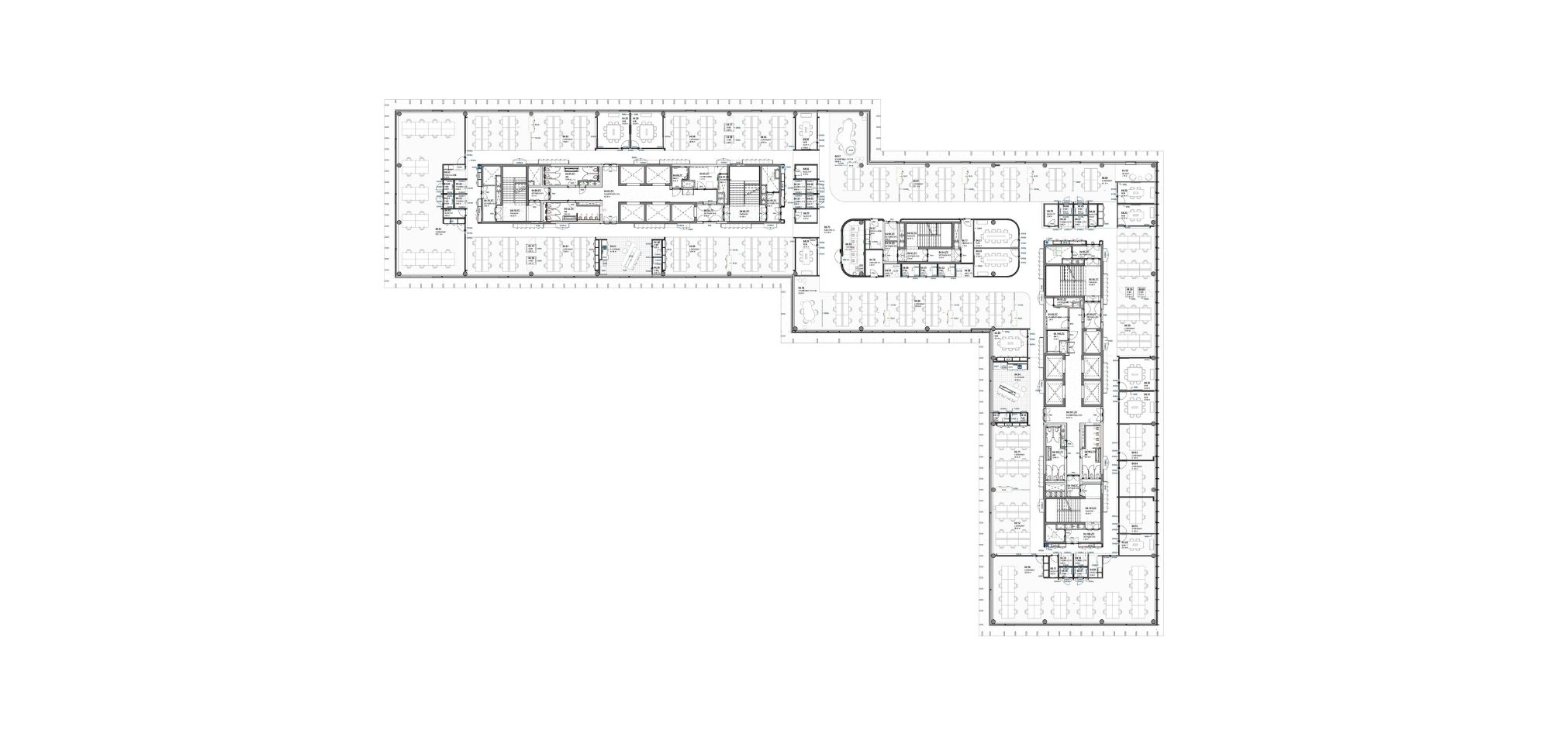
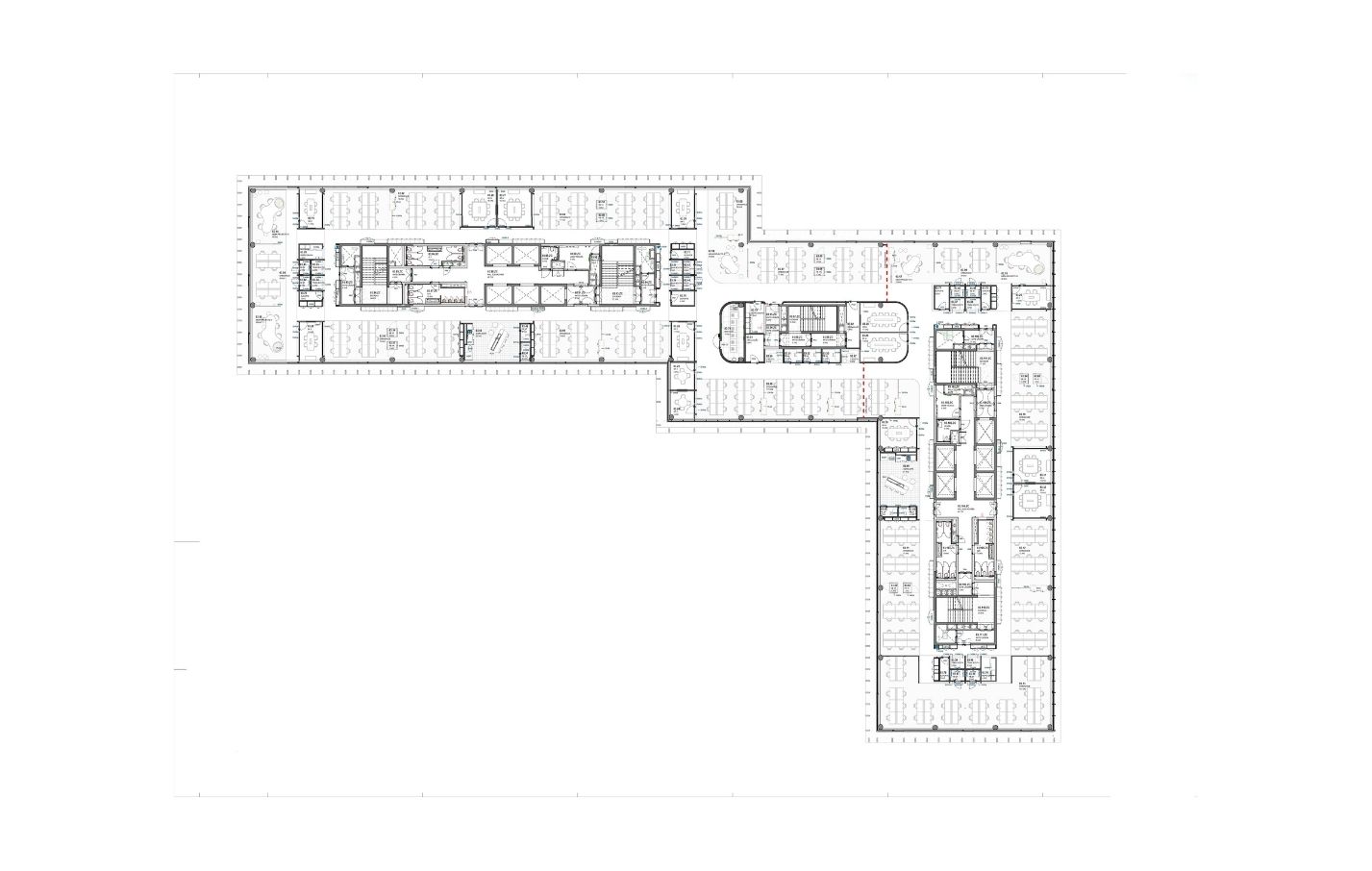
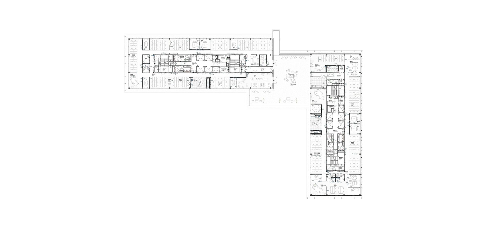
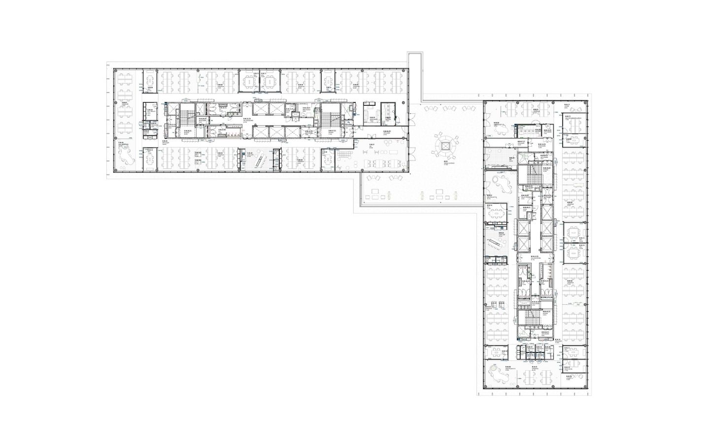
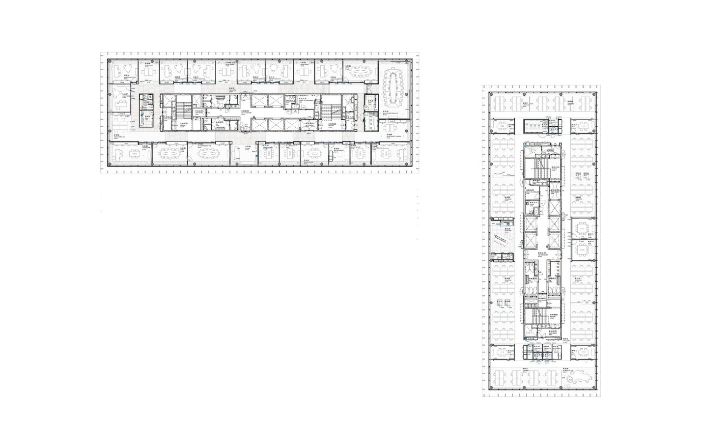
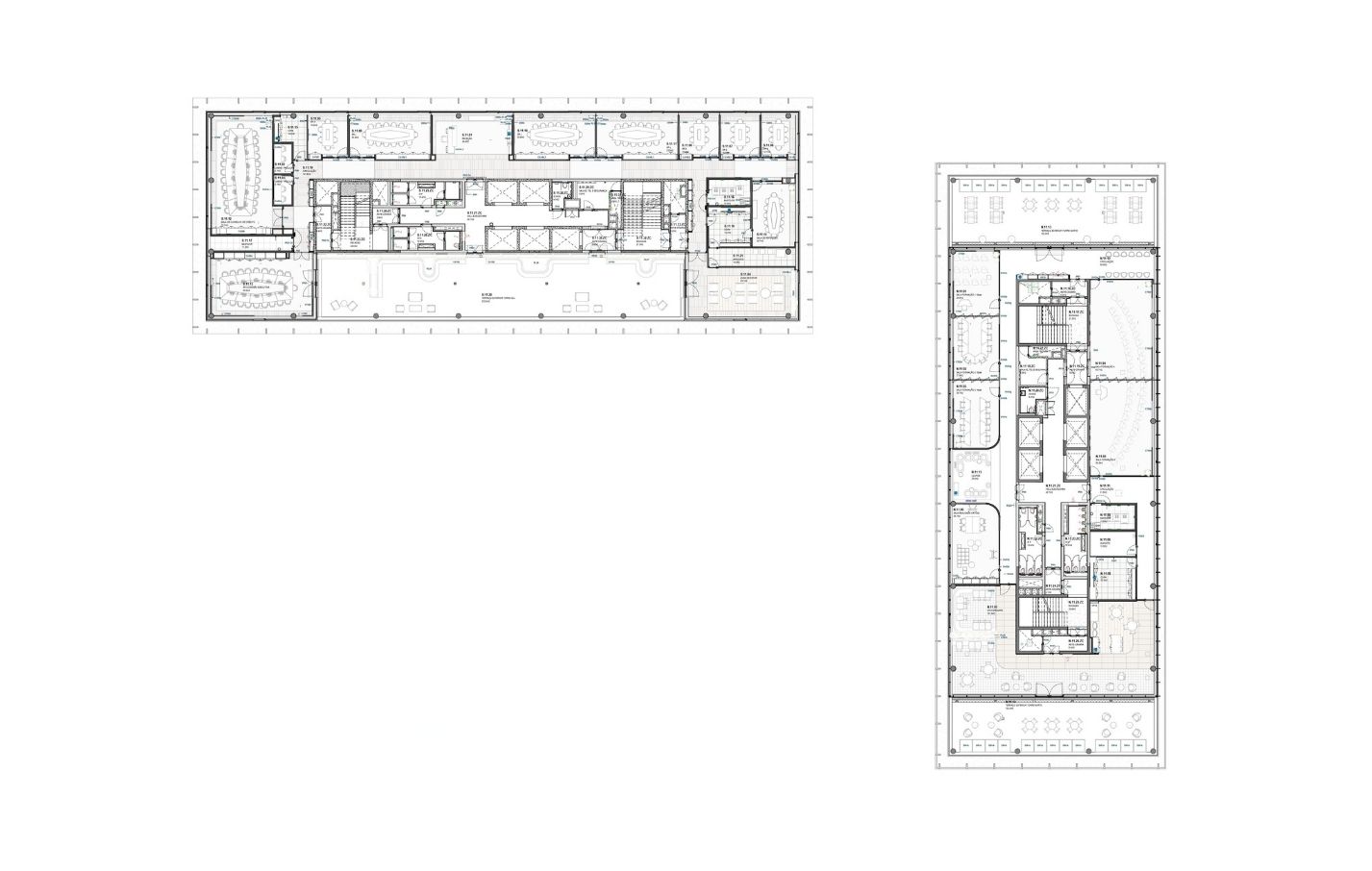
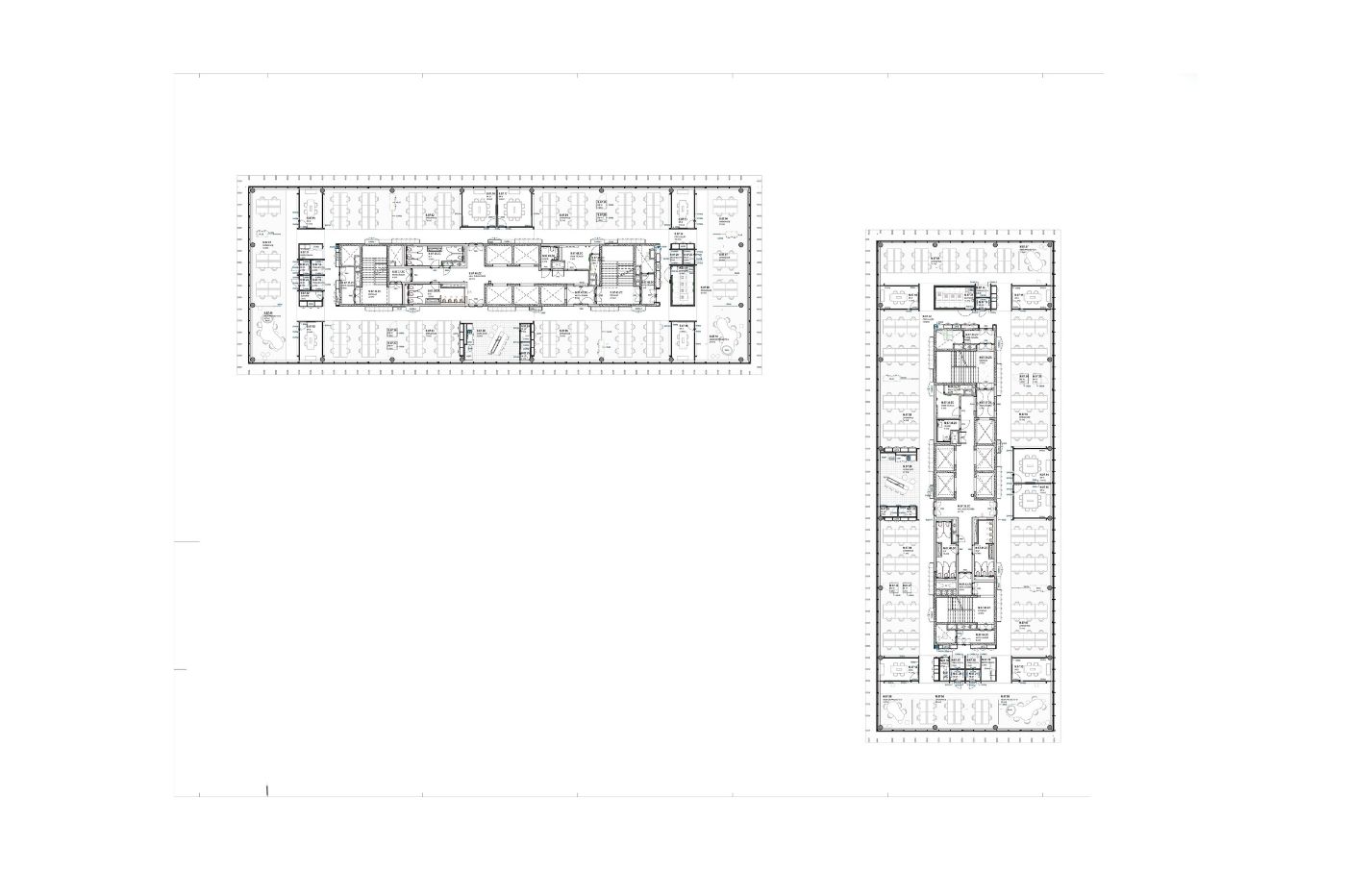
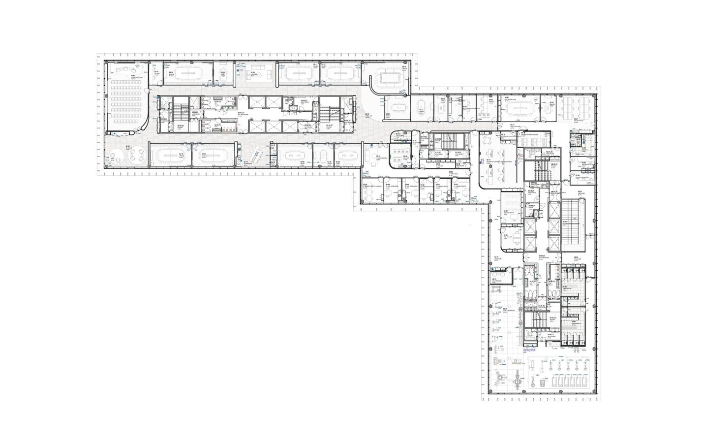
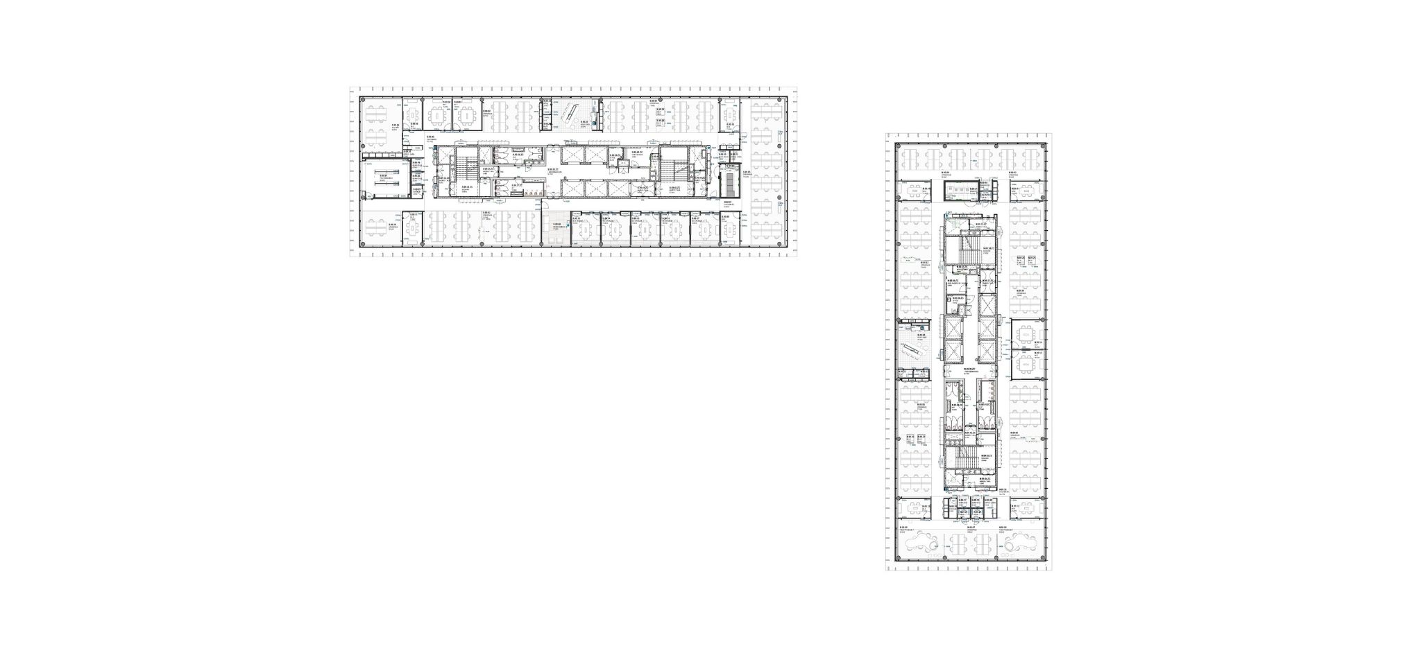
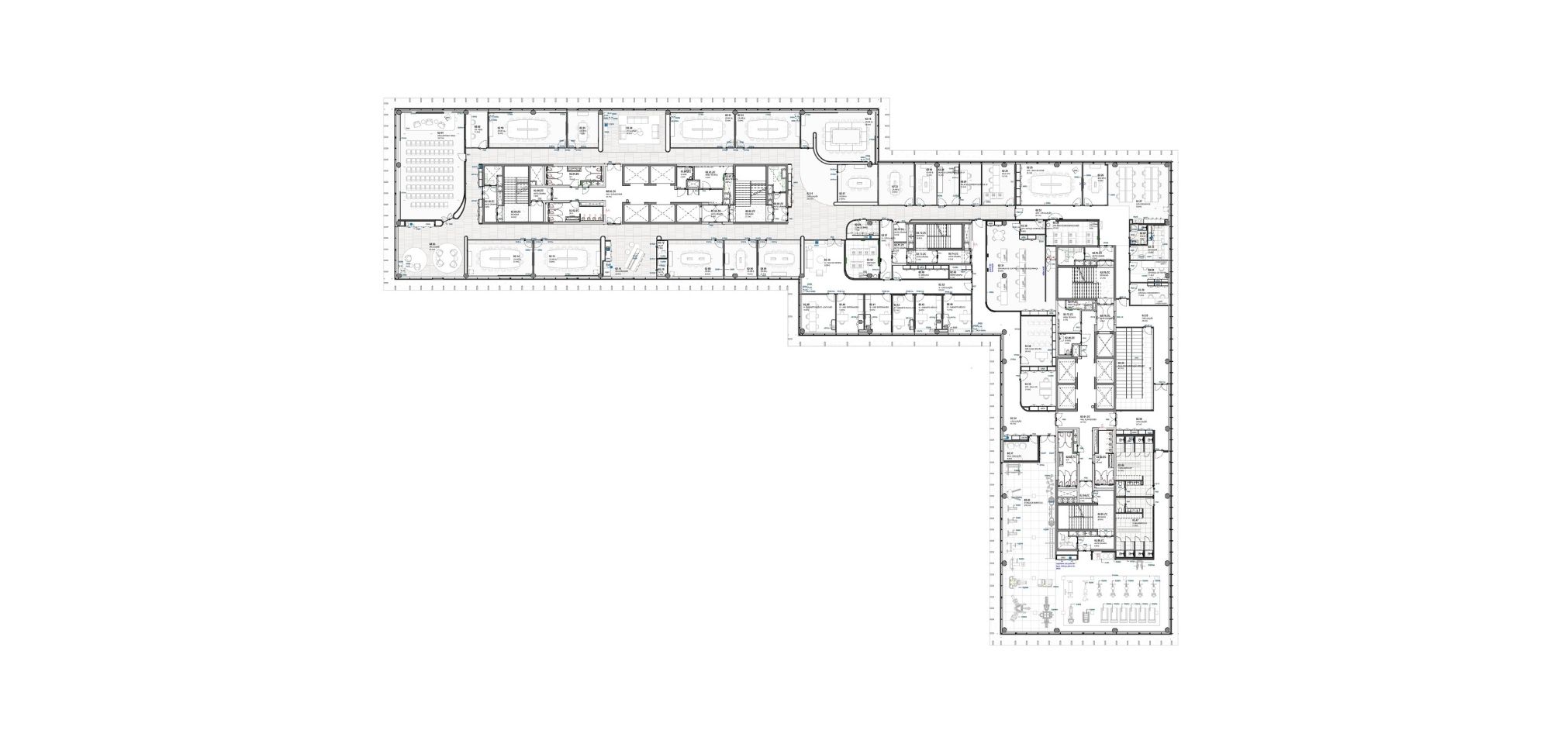
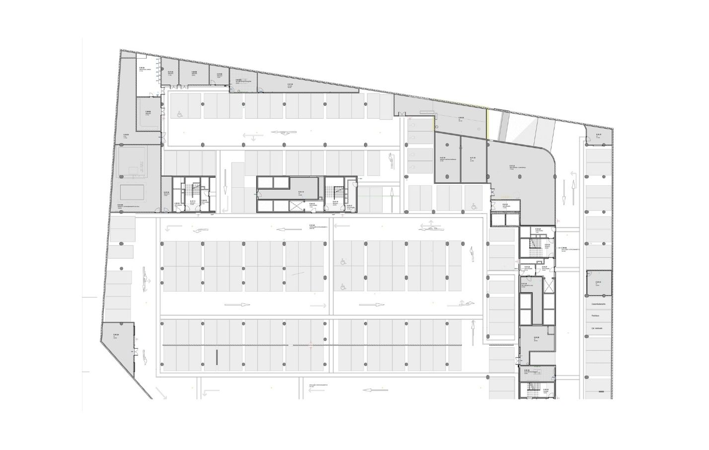
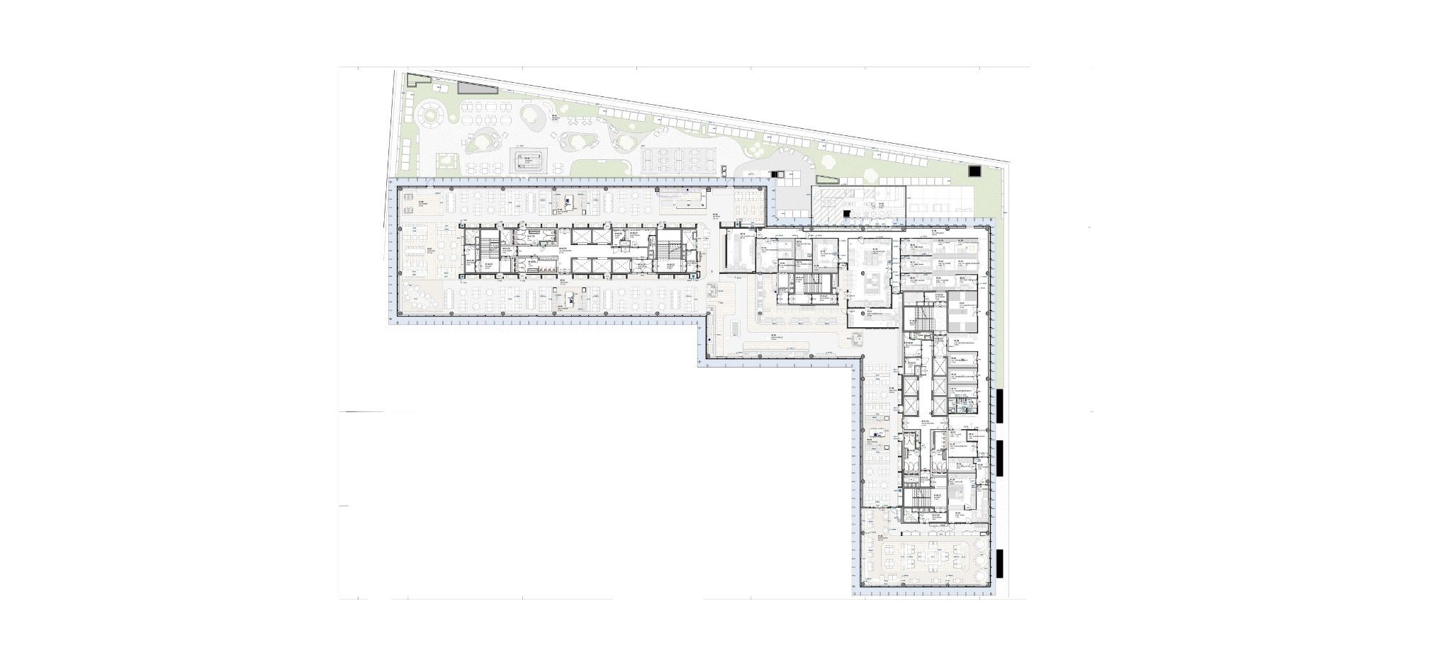
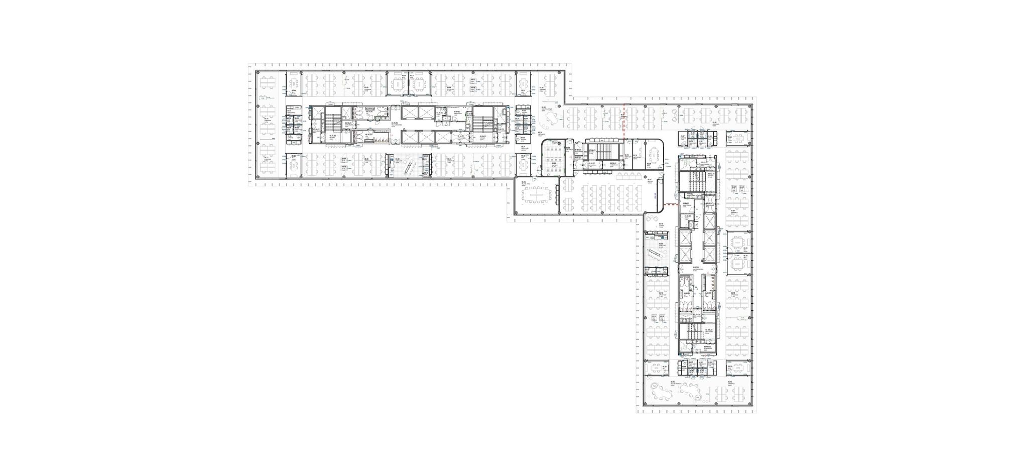
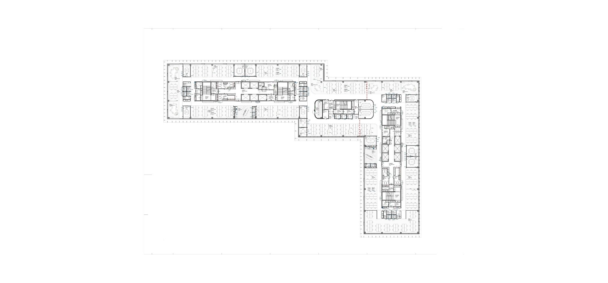
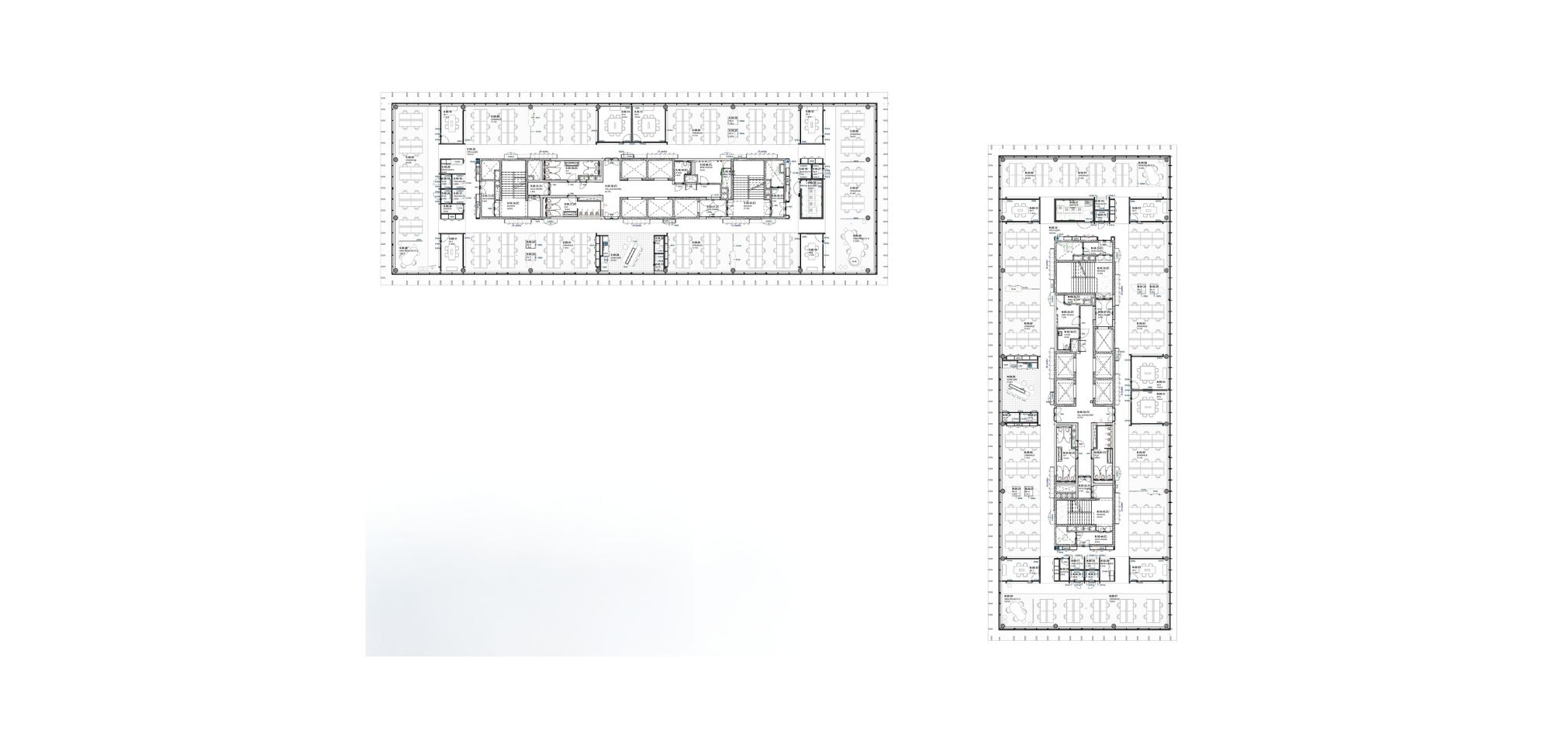
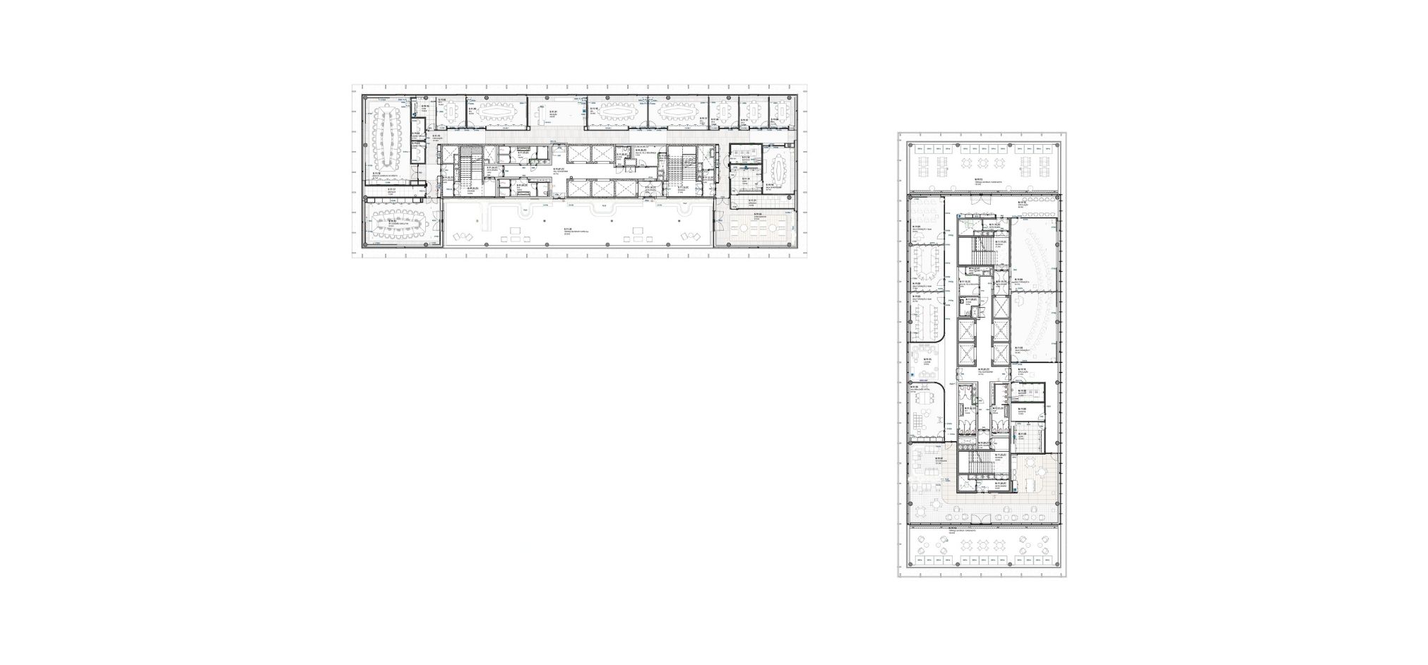
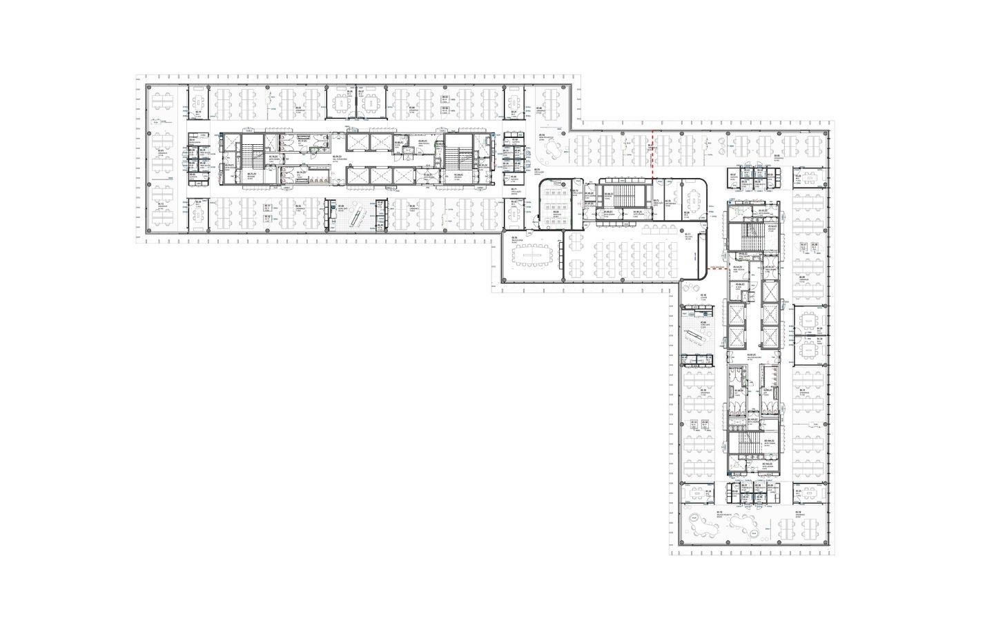
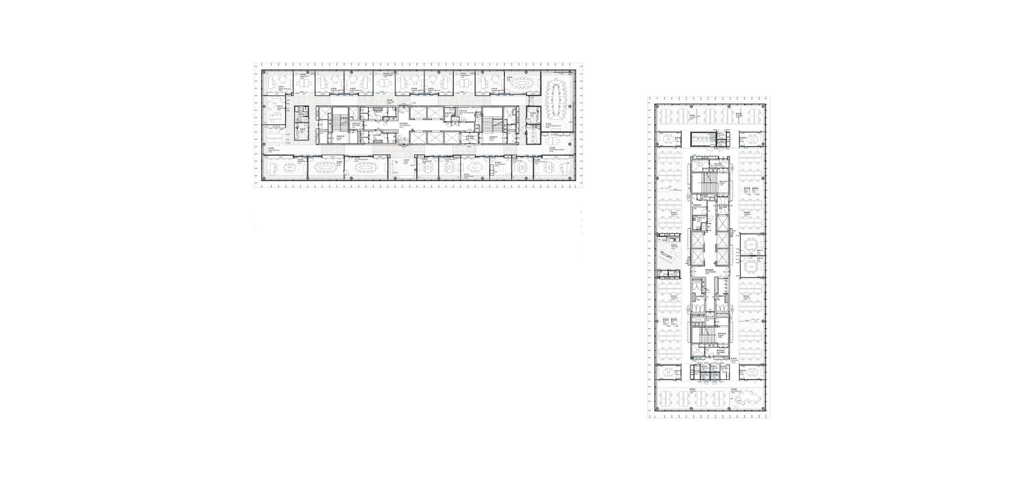
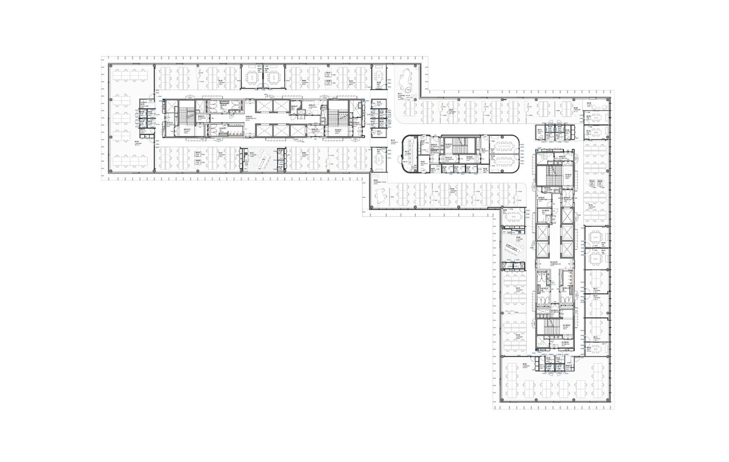
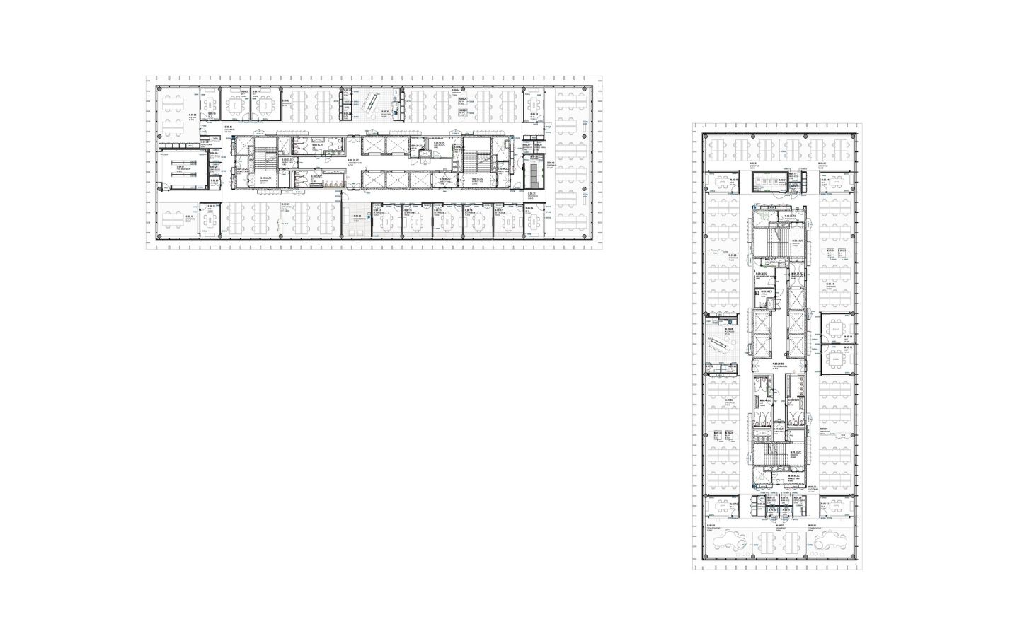
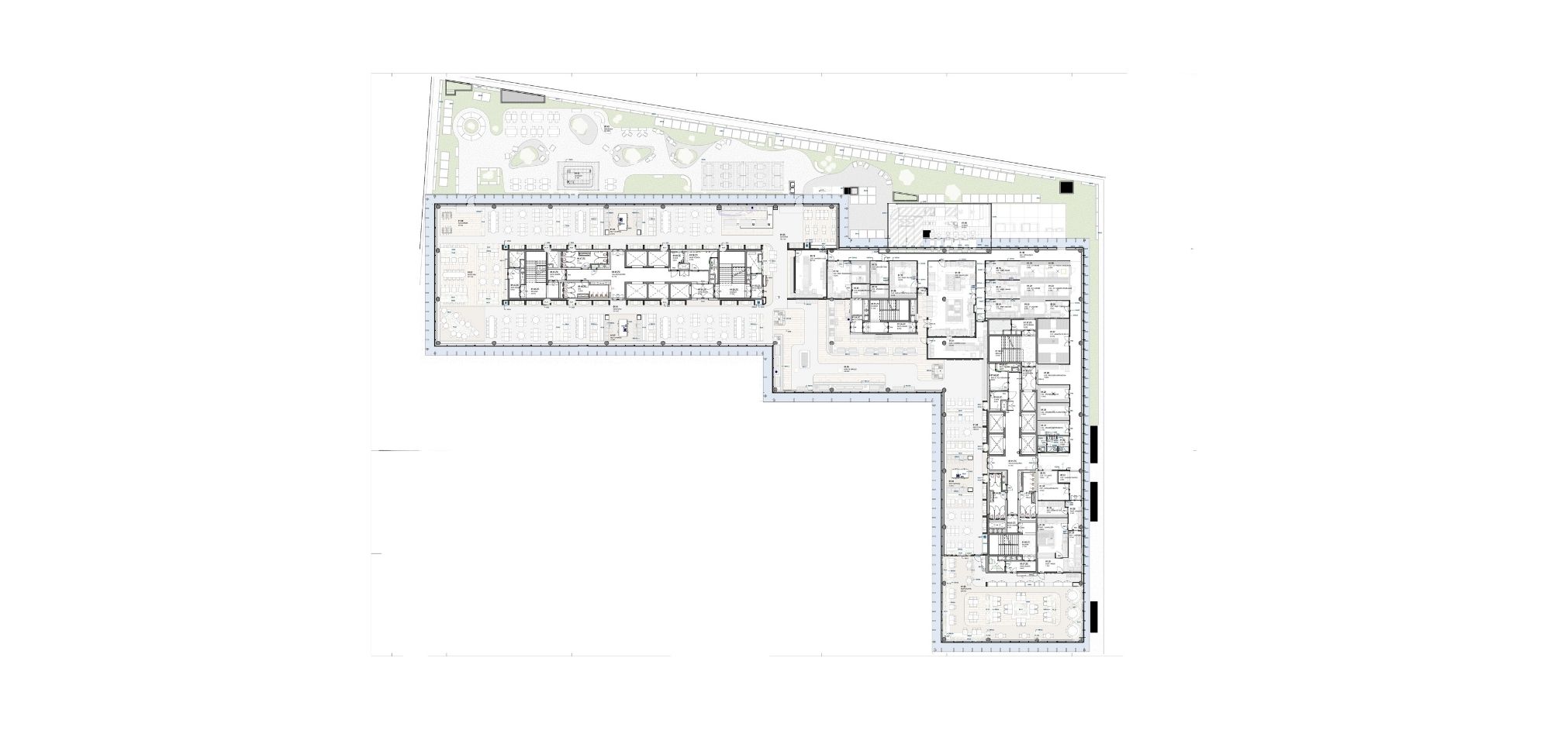
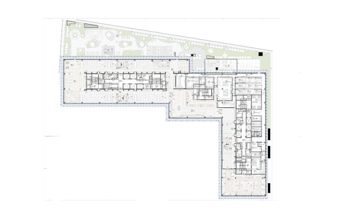
Floor Plans

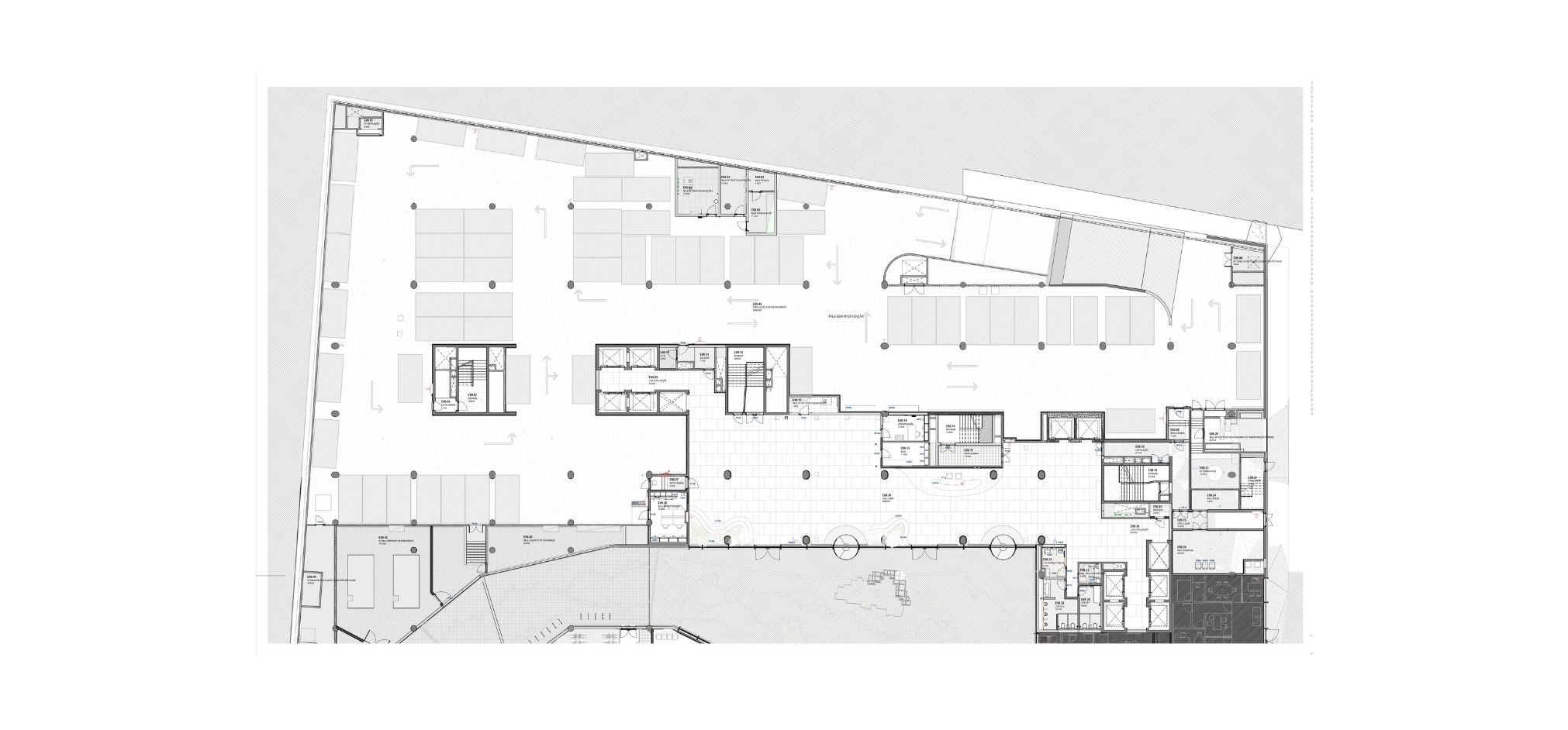
This new chapter in Caixa’s history begins with its welcoming experience. The lobby is open and transparent, creating an inviting space for employees, customers, and visitors. From the start, a solid reception area serves as a powerful metaphor, complemented by remarkable works of Portuguese art, highlighting Caixa’s role as one of the country’s leading cultural patrons. Multipurpose spaces enhance this experience, hosting exhibitions, lectures, and corporate events, all crowned by a striking suspended tile panel.

“Every material was chosen with intention. Stone conveys solidity, glass reflects transparency, and integrated art celebrates culture and time.”,

– Paulo Jervell , Lead Architect and Partner

Caixa is embracing the future as an active part of this transformation. The ground floor will feature a Grand Auditorium and an Experimental Area, open to everyone. Visitors can enjoy a signature coffee, work remotely, attend an exhibition or artistic performance, or visit a bank branch integrated into the space. This area is designed as a true invitation to the community, reflecting transparency as both a core value and an architectural solution.

The first floor will house the staff canteen, designed to be vibrant and welcoming, with elegant marble flooring and spacious dining areas. In addition, there will be a restaurant offering à la carte meals and curated dining experiences, making it accessible to everyone.

The second floor will house the external meeting area, a meeting centre, decorated with Portuguese art and fully equipped to welcome guests, with meeting rooms, informal spaces, more exclusive areas, including a more private auditorium. This floor, with its privileged view of the riverfront, will also house the gym, which is usually relegated to poorer areas. This is not the case here.

Floors 3 to 9 are dedicated to the operational teams driving Caixa forward. Guided by a tailor-made workplace strategy, each floor offers diverse solutions to support varying levels of interaction, from private, focused work areas equipped with phone booths to open-plan spaces and collaborative zones that foster teamwork and knowledge sharing. Every floor includes a ‘workcafé’ designed for breaks and light meals, encouraging informal idea exchange. These spaces are bathed in natural light and enriched with real greenery, complemented by neutral materials and a consistent color palette accented with deep navy tones, most sourced from Portuguese origins.

The upper floors are dedicated to the Administration, featuring refined details and exclusive touches, complemented by artworks from the bank’s collection. These spaces are designed to meet the needs of welcoming leaders and support teams, while embodying a commitment to openness and collaboration. This vision is exemplified by the administration room, which reflects the desire for transparency and shared purpose.

At CGD, the value of every individual shapes even the way spaces are designed. Reflecting this principle, one of the most prestigious areas on the upper floors has been reserved for the ‘Caixa Academia’. This space hosts CGD’s professional development and training programs for employees and university students, including initiatives such as the Summer Academy and the Geração Caixa trainee program. Designed with relaxed areas and panoramic views of the riverside, it offers an inspiring environment for learning and growth.

The long legacy of Caixa Geral de Depósitos, based on solidity and resilience, has a new home. This strength, which brings with it confidence and is not bound by time, looks to the future with conviction, materialising in a headquarters for everyone. Its essence is Portuguese, promoting and supporting national art, inviting everyone to discover it. A Caixa that is made up of its employees and brings them to the forefront. Caixa has a new home, following its commitment, with its feet on the ground and its eyes on the horizon.